HD IMMO Agence
Télécharger la fiche

Maison 4 pièce(s) 3 chambre(s) 114 m²

Boutenac (11200)
237 000 € Référence

A propos de ce bien

Située dans le charmant village de Boutenac, cette maison neuve de 2025 est un véritable joyau. Baignée de lumière naturelle, elle offre un cadre de vie exceptionnel. Proche des commodités, cette propriété bénéficie d'un emplacement idéal.
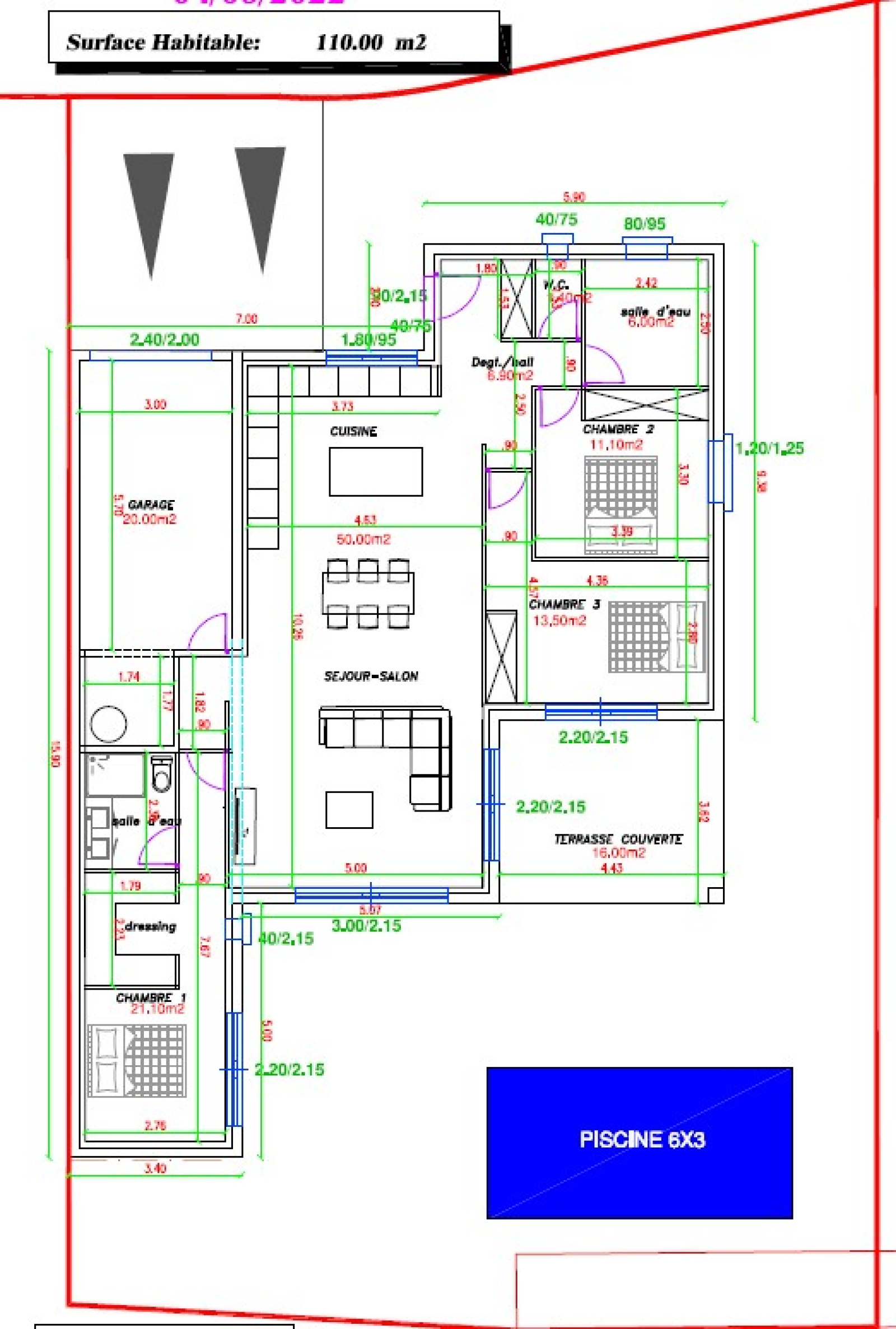
Le bien s'étend sur un terrain de 400 m², comprenant une piscine en pierre de Bali de 6x3 mètres, idéale pour se rafraîchir lors des journées ensoleillées. Deux places de parking et un garage offrent un espace de stationnement pratique. L'aménagement extérieur est pensé pour allier confort et esthétisme, offrant un cadre de vie agréable aux futurs résidents.
À l'intérieur, cette maison de plain-pied de 110 m² se compose de 4 pièces, dont 3 chambres lumineuses. La chambre parentale dispose d'une salle d'eau privative et d'un dressing. L'espace de vie se caractérise par une cuisine ouverte sur un salon spacieux. Avec 2 toilettes et 2 salles de bain, le confort et l'intimité des occupants sont assurés. Cette propriété moderne et bien pensée saura charmer les acheteurs en quête d'un bien alliant confort et fonctionnalité.

Les informations sur les risques auxquels ce bien est exposé sont disponibles sur le site Géorisques : www.georisques.gouv.fr

Caractéristiques de ce bien

  • Surface 114 m²
  • terrain 400 m²
  • 3 chambre(s)
  • 2 salle(s) d'eau
  • construit en 2025
  • Chauffage individuel : air pulsé (climatisation)
  • 1 garage(s)
  • 1 parking(s)
  • 1 côté(s) mitoyen(s)
  • 1 niveau(x)
  • terrasse

Diagnostics énergétiques

Consommation énergétique
A B C D E F G
Emission de gaz à effet de serre
A B C D E F G
DPE ANCIENNE VERSION

Informations financières

Prix de vente honoraires TTC inclus 237 000 €
Prix de vente honoraires TTC exclus 225 000 €
Honoraires TTC à la charge acquéreur 5,33 %

Calcul des mensualités

* Champs obligatoires